KAPCSOLATFELVÉTEL
Ingatlan jellege
téglalakás
Belső terület
57 m²
Tájolás
délnyugat
Építési állapot
használt
Építési mód
tégla
Szobák száma
3 szoba
Szobák elhelyezkedése
külön nyílik min. 2 szoba
Emelet
földszint.
Épület szintje
1.
Épült
1970
Akadálymentes
részlegesen
Lift
van
Ingatlan állapot
kívül: felújított
belül: felújított
Klíma
van
Szigetelés
15 cm
Ablak szerkezete
3 rétegű thermoplan
Fűtés
cirko
Komfort
összkomfort
Parkolás
van fedetlen felszíni beálló
Energetika
A++ 2024:
Heves megye, Hatvan, Óhatvan
Irányár
Szobák
Emelet
Terület
A 10 lakásos társasház teljes körű felújítása megkezdődött, a munkálatok folyamatosan zajlanak, és a birtokbaadás 2026 tavaszára várható.
A felújítás tartalmazza:
15 cm homlokzati szigetelés
új tetőszerkezet
korszerű nyílászárók
teljes elektromos hálózat cseréje
vakolás, festés, szaniterek és burkolatok
egyedi kondenzációs gázkazán lakásonként, padlófűtéssel
1 db klímaberendezés minden lakásban
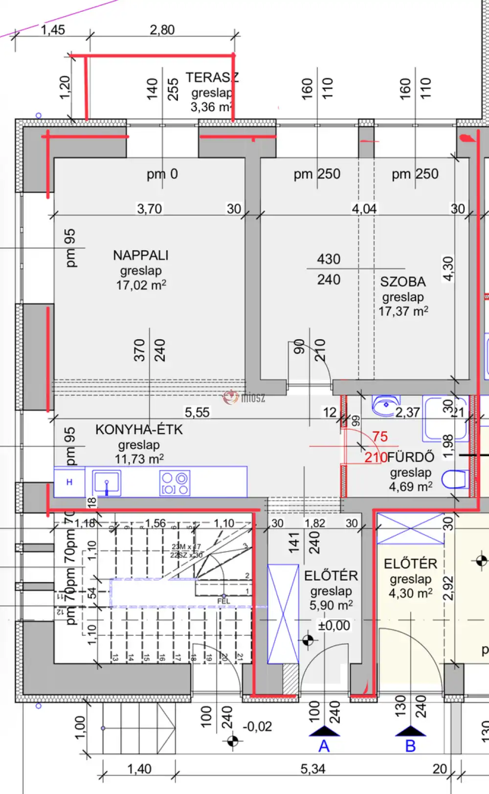
A korábbi tervtől eltérően a lakásban 2 hálószoba és 1 nappali kerül kialakításra, így tágasabb, modernebb elrendezés valósul meg.
Helyiségek:
amerikai konyhás nappali, 1 hálószoba, fürdőszoba, előtér, terasz
Zárt lakópark, mindegyik lakáshoz 1 parkolóhely tartozik.
A lakások befektetésre is ideálisak, hiszen Hatvan folyamatosan fejlődő város, ahol nagy a kereslet a minőségi, felújított ingatlanokra.
A referencialakások és az új lakópark rugalmasan, akár hétvégén is megtekinthetők, előre egyeztetett időpontban.
Ügyfeleimet ügyvédi háttérrel és bankfüggetlen hiteltanácsadással segítem – így CSOK+, 3%-os támogatott hitel és lakossági hitel is igényelhető.
Részletes műszaki tartalmat e-mailben küldök.
A lakópark további lakásai megtalálhatók a portfóliómban, a „referens további hirdetései” fül alatt.
Bővebb információért keressen bizalommal, ha nem tudom felvenni, visszahívom!
belül: felújított
Heves megye, Hatvan, Óhatvan

+36 70 396 5533
almaestatekft@gmail.com
KAPCSOLATFELVÉTEL
Ingatlan jellege
téglalakás
Belső terület
57 m²
Tájolás
délnyugat
Építési állapot
használt
Építési mód
tégla
Szobák száma
3 szoba
Szobák elhelyezkedése
külön nyílik min. 2 szoba
Emelet
földszint.
Épület szintje
1.
Épült
1970
Lift
van
Ingatlan állapot
kívül: felújított
belül: felújított
Klíma
van
Szigetelés
15 cm
Ablak szerkezete
3 rétegű thermoplan
Fűtés
cirko
Komfort
összkomfort
Parkolás
van fedetlen felszíni beálló
Energetika
A++ 2024: