Alma Estate Kft.

KAPCSOLAT
Kómár-Benke Nikoletta


+36 70 396

almaestatekft@

Az időpont kérés naptár ikonja
IDŐPONTOT KÉREK
A visszahívás kérés telefon ikonja egy azt körbe ölelő nyíllal
VISSZAHÍVÁST KÉREK
Ajánlom egy ismerősömnek ikon
AJÁNLOM EGY ISMERŐSÖMNEK
Facebook megosztás ikon
MEGOSZTÁS

KAPCSOLATFELVÉTEL

Küldés

Az üzenetet sikeresen elküldtük!
Hiba történt!
INGATLAN ADATAI

Ingatlan jellege

ikerház

Belső terület

112 m²

Telek terület

600 m²

Tájolás

észak

Építési állapot

használt

Építési mód

tégla

Szobák száma

5 szoba

Épület szintje

1.

Épült

2026

Ingatlan állapot

kívül: új
belül: új

Klíma

előkészítve

Szigetelés

10 cm

Ablak szerkezete

3 rétegű thermoplan

Fűtés

gázkazán

Komfort

összkomfort

Parkolás

van fedetlen felszíni beálló

Közműállapot

csatorna: bekötve
gáz: bekötve
villany: bekötve
víz: bekötve

Energetika

A++:

Az időpont kérés naptár ikonja
HTML
Az időpont kérés naptár ikonja
PDF
Eladó ikerház
Ingatlan azonosító:
64_aes

Pest megye, Gödöllő

Irányár

135 M Ft

Szobák

5 szoba

Terület

112 m²

Telek terület

600 m²
INGATLAN LEÍRÁSA
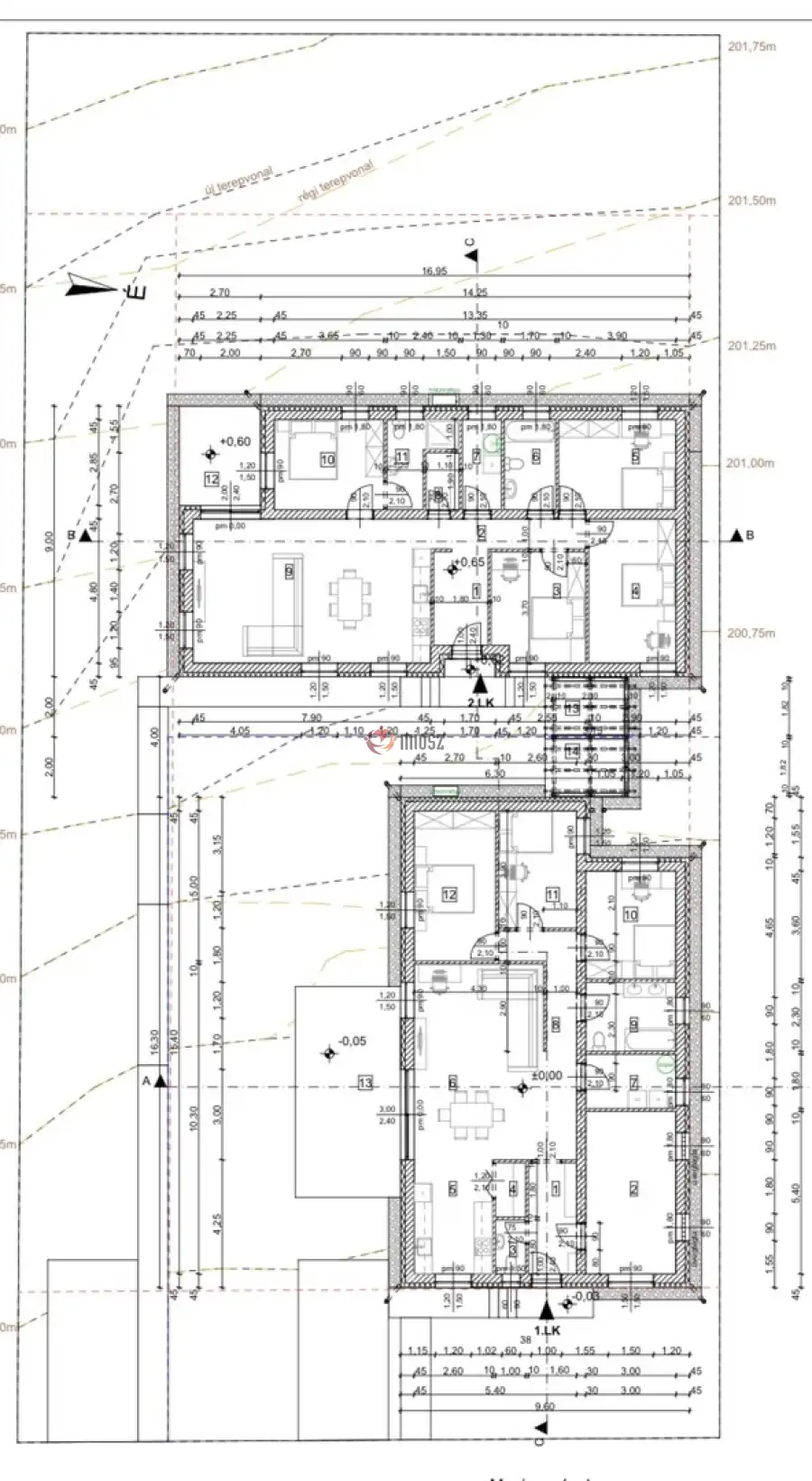
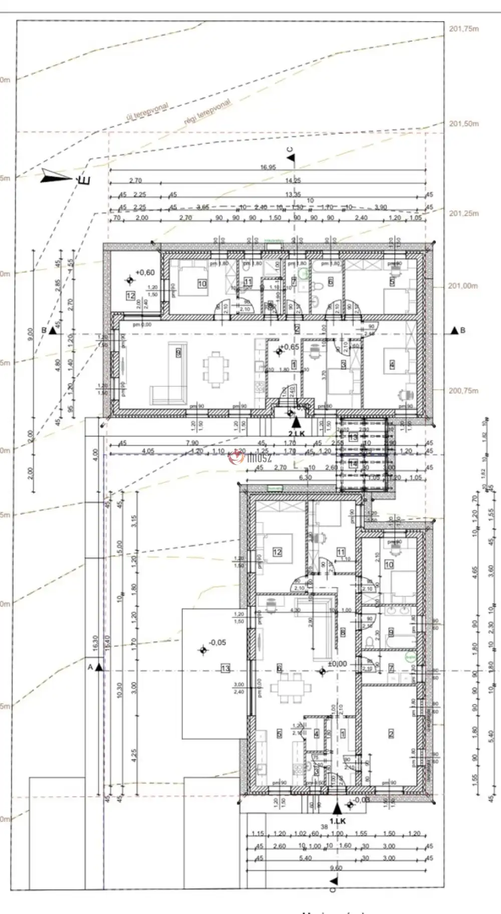
Eladásra kínálok Gödöllőn, a Királytelepen, közkedvelt kertvárosi környezetben egy új építésű ikerházat, amely közel 1000 m²-es telken valósul meg.

Nyugodt, családbarát környezet, kiváló infrastruktúra és átgondolt alaprajz jellemzi a projektet.

1. lakás – utcafronti
•Bruttó alapterület: ~150 m²
•Nettó hasznos alapterület: ~120 m²
•Saját kert: ~400 m²
•Terasz: ~25 m²
•Kerti tároló: ~4 m²
Helyiségek:
Előtér + közlekedő (~6 m²),
4 szoba (~16 m², ~14 m², ~11 m², ~10 m²),
nappali–étkező (~32 m²),
külön konyha (~10 m²),
fürdőszoba (~7 m²),
külön WC (~2 m²),
kamra (~2 m²),
háztartási helyiség (~5 m²),
közlekedő (~6 m²).

2. lakás – hátsó
•Bruttó alapterület: ~143 m²
•Nettó hasznos alapterület: ~112 m²
•Saját kert: ~600 m²
•Terasz: ~9 m²
•Kerti tároló: ~4 m²
Helyiségek:
Előtér + közlekedő (~6 m²),
közlekedő (~5 m²),
4 szoba (~14 m², ~12 m², ~11 m², ~11 m²),
nappali–étkező–konyha (~38 m²),
fürdőszoba (~5 m²),
második fürdőszoba (~5 m²),
háztartási helyiség (~4 m²).

A környék infrastruktúrája kiváló: buszmegálló, üzletek, gyógyszertár, iskola és óvoda rövid távolságon belül elérhető.

Az ingatlanokat megbízható, nagy tapasztalattal rendelkező kivitelező építi, aki számos referenciával rendelkezik.

Az ingatlan és a referenciaházak előre egyeztetett időpontban megtekinthetők.

Részletes műszaki tartalmat e-mailben továbbítok.

A vásárláshoz díjmentes hiteltanácsadással segítek, végigkísérve az ügyintézés teljes folyamatát.

Amennyiben Gödöllőn keres új építésű otthont megbízható, tapasztalt kivitelezőtől, ezt az ingatlant csak ajánlani tudom.

Ideális választás családok számára, akik biztonságos, nyugodt környezetben szeretnék felnevelni gyermekeiket, miközben élvezni szeretnék a város nyújtotta kényelmet, valamint a természet, kirándulóhelyek és zöldövezetek közelségét, amelyeket Gödöllő bőségesen kínál.

INGATLAN ADATAI

Ingatlan jellege
ikerház
Belső terület
112 m²
Telek terület
600 m²
Tájolás
észak
Építési állapot
használt
Építési mód
tégla
Szobák száma
5 szoba
Épület szintje
1.
Épült
2026
Ingatlan állapot
kívül: új
belül: új
Klíma
előkészítve
Szigetelés
10 cm
Ablak szerkezete
3 rétegű thermoplan
Fűtés
gázkazán
Komfort
összkomfort
Parkolás
van fedetlen felszíni beálló
Közműállapot
csatorna: bekötve
gáz: bekötve
villany: bekötve
víz: bekötve
Energetika
A++:
TÉRKÉP

Pest megye, Gödöllő

KAPCSOLAT
Kómár-Benke Nikoletta
Kómár-Benke Nikoletta


+36 70 396 5533

almaestatekft@gmail.com

KAPCSOLAT
Kómár-Benke Nikoletta

+36 70 396

almaestatekft@

Az időpont kérés naptár ikonja
IDŐPONTOT KÉREK
A visszahívás kérés telefon ikonja egy azt körbe ölelő nyíllal
VISSZAHÍVÁST KÉREK
Ajánlom egy ismerősömnek ikon
AJÁNLOM EGY ISMERŐSÖMNEK
Facebook megosztás ikon
MEGOSZTÁS

KAPCSOLATFELVÉTEL

Küldés

Az üzenetet sikeresen elküldtük!
Hiba történt!
INGATLAN ADATAI

Ingatlan jellege

ikerház

Belső terület

112 m²

Telek terület

600 m²

Tájolás

észak

Építési állapot

használt

Építési mód

tégla

Szobák száma

5 szoba

Épület szintje

1.

Épült

2026

Ingatlan állapot

kívül: új
belül: új

Klíma

előkészítve

Szigetelés

10 cm

Ablak szerkezete

3 rétegű thermoplan

Fűtés

gázkazán

Komfort

összkomfort

Parkolás

van fedetlen felszíni beálló

Közműállapot

csatorna: bekötve
gáz: bekötve
villany: bekötve
víz: bekötve

Energetika

A++:

Az időpont kérés naptár ikonja
HTML
Az időpont kérés naptár ikonja
PDF
Pest megye - Gödöllő
Pest megye - Gödöllő